Leave a Message

Thank you for your message. We will be in touch with you shortly.

549 7th Street

$249,000
549 7th Street, Glendale, OR 97442
549 7th Street

549 7th Street

$249,000

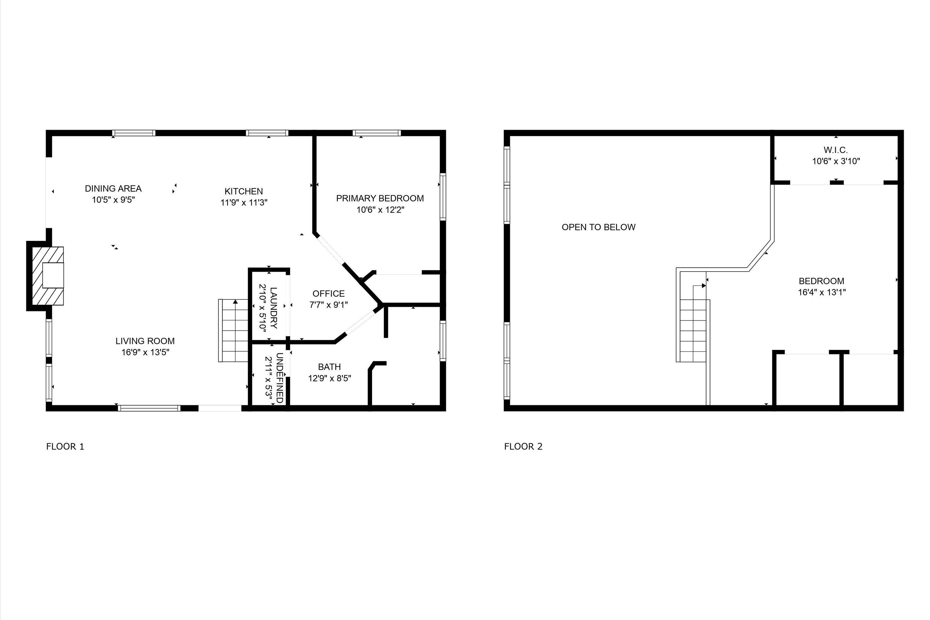
Majestically Rustic Home with Open Floorplan and Vaulted Ceilings! Picturesquely nestled on a 0.40-acre lot among towering mature trees, this beautiful 2BR/1.5BA residence immediately charms with gorgeous natural wood siding, hunter green trim, and a partially covered wraparound porch. Warmly welcoming for ample comfort, the well-maintained interior features high vaulted ceilings, overflowing natural light, hardwood floors, and a sizeable living room with a wood-burning stove. Equipped for easy entertaining and even easier meal prep, the open concept kitchen has a stainless-steel stove, built-in microwave, wood cabinets, breakfast bar, and an adjoining dining area. One bedroom and a full bathroom with a shower/tub combo are conveniently situated on the main-level to satisfy multigenerational needs. Enjoy the immense possibilities of the upper-level loft/second-bedroom. Other features: available parking, interior laundry, office nook, shed, close to restaurants, and more!
Justin Burton
Justin Burton Contact

Features & Amenities

Interior

Total Bedrooms 2
Total Bathrooms 2
Full Bathrooms 1
Half Bathrooms 1
Flooring Carpet, Hardwood
Appliances Dryer, Microwave, Range, Refrigerator, Washer

Exterior

Stories 2
Water Source Public
ROOF Metal
Parking Driveway
Heat type Ductless, Wood
Air Conditioning Ductless
Sewer Public Sewer
Substructure Pillar/Post/Pier
Security Features Carbon Monoxide Detector(s), Smoke Detector(s)

Area & Lot

Status Sold
LIVING SPACE 768 Sq.Ft.
TOTAL AREA 768 Sq.Ft.
LOT SIZE 0.4 Acres
MLS® ID 220188920
Type Residential
Year Built 2006
Architecture Styles A-Frame
View Description Forest
ELEMENTARY SCHOOL Glendale Elem
MIDDLE SCHOOL Check with District
HIGH SCHOOL Check with District

Financial

SALES PRICE $249,000
REAL ESTATE TAXES $1,370/yr
View Virtual Tour

Work With Justin

Born and raised in Oregon, I take pride in exceeding my clients' expectations with dedication, excellent service, and a personal touch. With a background in IT management and expertise in online advertising, I bring innovative strategies to your real estate journey. Let’s work together to make your home dreams a reality.

Let's Connect

Follow Me on Instagram